Parcela con ubicación Única!!!
1.260.000 €Estepona, 228.47 m² plano
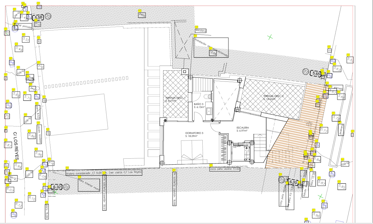
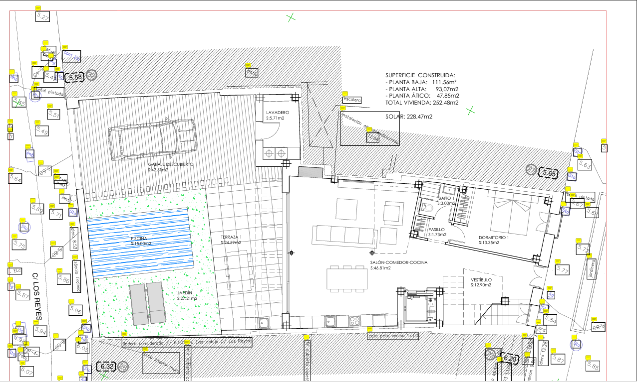
Se presenta a la venta un excepcional solar que destaca por sus amplias dimensiones, las cuales permiten la edificación de una vivienda unifamiliar como la prevista en el proyecto, así como múltiples alternativas de desarrollo. Entre las opciones se contemplan desde dos plantas bajas más dos dúplex, hasta seis apartamentos o, incluso, un exclusivo hotel boutique.
La privilegiada ubicación de esta parcela la convierte en una verdadera joya en pleno corazón del casco histórico de Estepona.
Dispone de dos fachadas: una situada en la calle San Antonio Nº25 y otra en la calle de los Reyes Nº28-30.
- Referencia
- BhI-019
- Tipo
- Parcela
- Localización
- Estepona Casco Antiguo, Estepona
- Parcela m²
- 228,47

